Informationen aus und über, aber nicht nur für Wächtersbach-Neudorf ...  

 Informationen aus und über  

  Wächtersbach-Neudorf ...  

Header Neudorf V2 mit Wappen

Johanneskirche 2015Bereits 2012 beim Fest anlässlich des 50-jährigen Jubiläums der Johanneskirche hatten sich die Kirchenvorstände von evangelischer und katholischer Kirchengemeinde darüber verständigt, dass sie gemeinsam den Kirchenvorplatz vor der Doppelkirche renovieren werden. Dazu wurde bei verschiedenen Gelegenheiten Geld gesammelt, doch es war ein langer Weg.

Im Sommer 2018 wird jedoch zur Tat geschritten. Wichtigste Aktivität ist die Neuanlage des Kirchplatzes. Dieser ist bisher teilweise gepflastert, ansonsten geschottert; Gräser und Unkraut finden aber problemlos ihren Weg nach oben. Und auch das vorhandene Pflaster ist im Lauf der Jahre unansehnlich geworden.

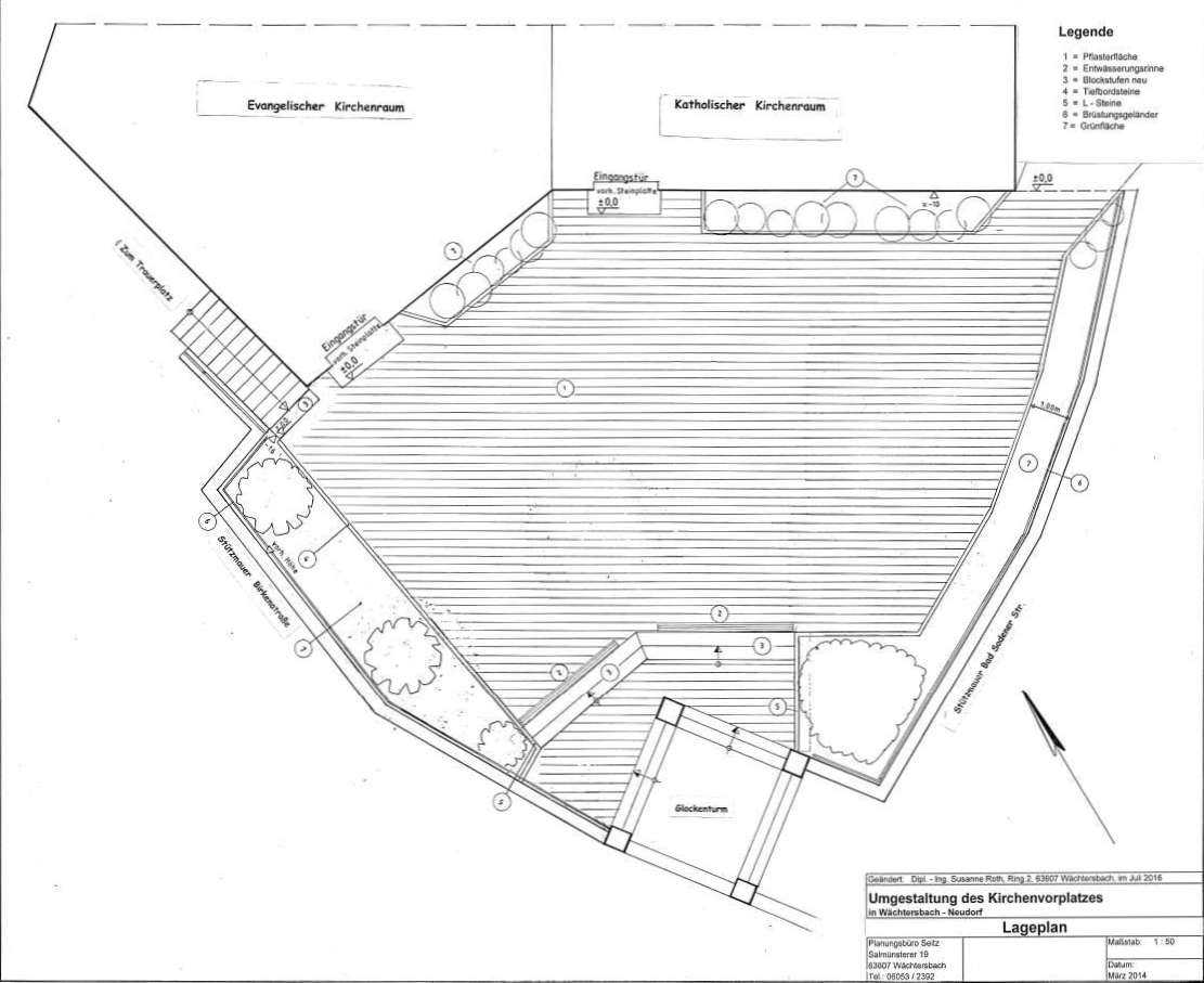
Der größte Teil des Kirchplatzes soll eine neue Pflasterung erhalten. Die Anlage von Blumenrabatten ist ebenfalls vorgesehen. Den Plan können Sie hier anschauen.

Kirchplatz mit Gras und Unkraut

Durch die Pflasterung soll nicht nur der optische Eindruck verbessert werden, sondern auch ein Versprechen eingelöst werden: Im Rahmen der Dorferneuerung war ein –zugegebenermaßen sehr gelungener und ansehnlicher- Barriere-freier Zugang zu Kirchplatz und Friedhof geschaffen worden.

Barrierefreier Zugang zu Friedhof und Kirche

BarrierefreiDoch dem Versprechen des Schildes, einen Barriere-freien Zugang zur Kirche geschaffen zu haben, sind die Stufen vor den Gottesdiensträumen im Weg (s. Foto ganz oben). Dieses Problem lässt sich bei der Pflasterung des Kirchplatzes beseitigen.

Ein weiteres Problem ist die fehlende Absturzsicherung an der Kirchenmauer. Da diese teilweise beinahe 2 Meter hoch ist (s. Foto unten), besteht ohne ein geeignetes Geländer durchaus Absturzgefahr, insbesondere für spielende Kinder.
Im Rahmen des Bestandsschutzes duldet die zuständige Aufsichtsbehörde den Zustand noch; dies gilt aber nur so lange, wie keine anderen Renovierungsmaßnahmen am Kirchplatz vorgenommen werden. Anders ausgedrückt bedeutet das, dass bei der Neugestaltung auch das Anbringen eines Geländers erfolgen muss.

Kirchenmauer

Für die geplanten Arbeiten werden noch freiwillige Helfer gesucht. Wer mithelfen will, wird gebeten, sich bei Claudia Müller, Tel. 06053-2822, zu melden. Der erste Arbeitseinsatz soll am 30.06.2018, ab 08:00 Uhr, durchgeführt werden.

Update von Juli 2018

Die Arbeiten haben termingerecht am 30.06.2018 begonnen. Hier einige Fotos von diesem Arbeitseinsatz:

Arbeiten am Kirchenvorplatz 30.06.2018

Update von August 2018

Die Beete am Rand sind ebenso vorbereitet wie Wasserabläufe und die Erhöhung des Platzniveaus. Jetzt kann die Fläche bald gepflastert werden.

Kirchenvorplatz am 06.08.2018